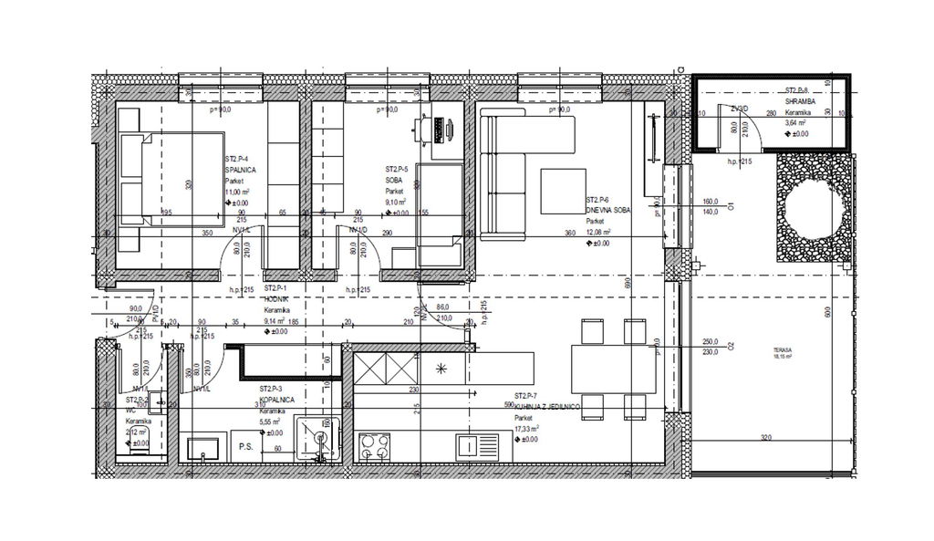
V pritličju nove stanovanjske stavbe je naprodaj prostorno trisobno stanovanje. Stanovanje obsega vhodni hodnik, ločen wc, kopalnico, dve spalnici ter svetel dnevno-bivalni prostor, v katerem so urejeni kuhinja, jedilnica in dnevna soba. Iz dnevne sobe je izhod na manjšo teraso z vzhodno lego.
Talne obloge so kombinacija gotovega parketa in keramike. Ogrevanje je v celoti talno preko toplotne črpalke. Vgrajena so PVC okna s troslojno zasteklitvijo in roletami. Objekt je klasične opečne gradnje z lesenim ostrešjem, kritim z opečno kritino, fasada pa je izvedena z 20 cm stiroporne izolacije.
Stanovanju pripada terasa, shramba ter eno zunanje parkirno mesto. Stanovanje je bilo krajši čas oddajano, zato je opremljeno; cena opreme po dogovoru.
Lokacija je zelo ugodna, saj je le nekaj minut vožnje do trgovine, šole, vrtca, zdravstvenega doma, zobozdravnika, lekarne in pošte. Prav tako je v neposredni bližini priključek na avtocesto.
Vabljeni k ogledu. Kupec prost plačila za posredovanje.

Licensed real estate broker